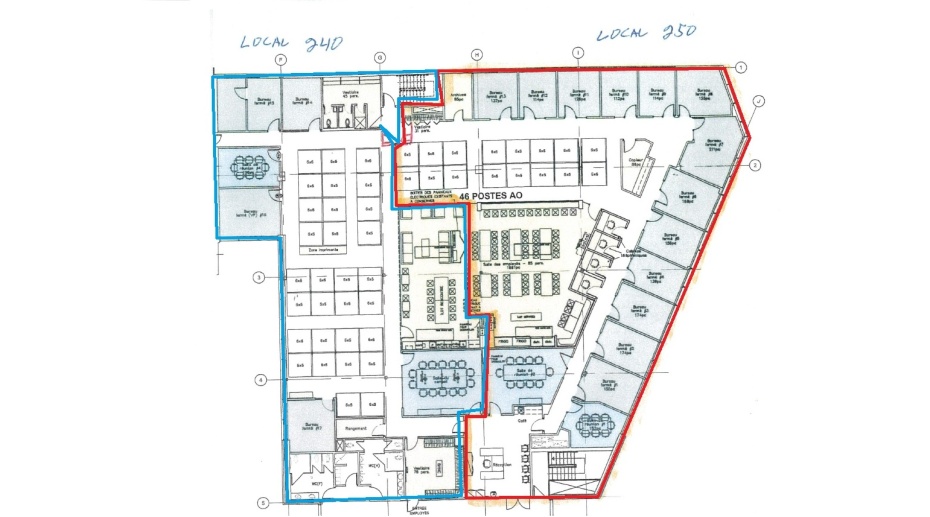
Ce local, situé au 4535, boulevard Wilfrid-Hamel, local 240&250, offre une superficie d’environ 13 600 p.c. Déjà bien aménagé, il comprend plusieurs bureaux fermés, des espaces de travail en aire ouverte et des zones de collaboration modernes. L’aménagement est fonctionnel et versatile, convenant aussi bien à une entreprise de services, une firme technologique ou un centre administratif.
L’espace inclut une grande salle de conférences, plusieurs zones de travail 5×5, une salle de pause conviviale et un espace de rangement. Son concept aéré et organisé favorise la productivité et le travail d’équipe.
Situé dans un immeuble professionnel d’envergure, l’emplacement est facilement accessible et bénéficie d’une excellente visibilité sur le boulevard Wilfrid-Hamel, à proximité de l’autoroute Félix-Leclerc.
https://carte.ville.quebec.qc.ca/GrillesZonage/HandlerZonage.ashx?22114Cb
Ce n’est pas le local idéal ?
Contactez nous, plusieurs locaux ne sont pas affichés
Chez Location BCI, nous sommes spécialisés dans la location de locaux commerciaux adaptés aux besoins de votre entreprise. Que vous soyez à la recherche d’un local à louer, d’un bureau à louer, ou d’un local industriel à louer, notre équipe professionnelle est là pour vous accompagner et cela rapidement.
Si le local que vous consultez ne correspond pas parfaitement à vos attentes, pas de souci! Nous mettons tout en œuvre pour trouver le meilleur espace pour votre entreprise grâce à notre expertise, notre réseau et notre rapidité d’action.
Notre mission est simple : vous offrir un service personnalisé, efficace et axé sur vos besoins spécifiques, afin de garantir une expérience de location fluide et sans tracas. Avec Location BCI, vous avez la certitude de collaborer avec une agence professionnelle qui comprend l’importance d’un local parfaitement adapté à votre réussite.
Contactez-nous dès aujourd’hui pour explorer nos options de locaux commerciaux à louer à Québec et laissez-nous vous guider vers l’espace idéal pour votre entreprise.
