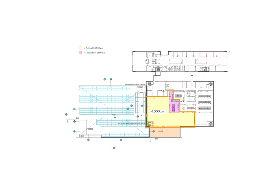
Ce local d’environ 6 000 p.c., local 270, situé au 2ᵉ étage, offre une configuration idéale pour une entreprise œuvrant en production légère, laboratoire, assemblage technique ou opérations nécessitant un accès pratique pour la manutention.
Le local comprend un monte-charge permettant la circulation efficace des marchandises entre les étages, ainsi qu’un débarcadère à 4 pieds, facilitant les opérations de livraison, d’expédition et de réception. L’espace, actuellement à vocation d’entrepôt/production, peut accueillir divers aménagements selon les besoins.
Situé au cœur du Parc-Technologique, dans un environnement corporatif et hautement professionnel, ce local représente une opportunité stratégique pour une entreprise recherchant un espace polyvalent, fonctionnel et bien positionné.
https://carte.ville.quebec.qc.ca/GrillesZonage/HandlerZonage.ashx?22118Ip
Ce n’est pas le local idéal ?
Contactez nous, plusieurs locaux ne sont pas affichés
Chez Location BCI, nous sommes spécialisés dans la location de locaux commerciaux adaptés aux besoins de votre entreprise. Que vous soyez à la recherche d’un local à louer, d’un bureau à louer, ou d’un local industriel à louer, notre équipe professionnelle est là pour vous accompagner et cela rapidement.
Si le local que vous consultez ne correspond pas parfaitement à vos attentes, pas de souci! Nous mettons tout en œuvre pour trouver le meilleur espace pour votre entreprise grâce à notre expertise, notre réseau et notre rapidité d’action.
Notre mission est simple : vous offrir un service personnalisé, efficace et axé sur vos besoins spécifiques, afin de garantir une expérience de location fluide et sans tracas. Avec Location BCI, vous avez la certitude de collaborer avec une agence professionnelle qui comprend l’importance d’un local parfaitement adapté à votre réussite.
Contactez-nous dès aujourd’hui pour explorer nos options de locaux commerciaux à louer à Québec et laissez-nous vous guider vers l’espace idéal pour votre entreprise.
