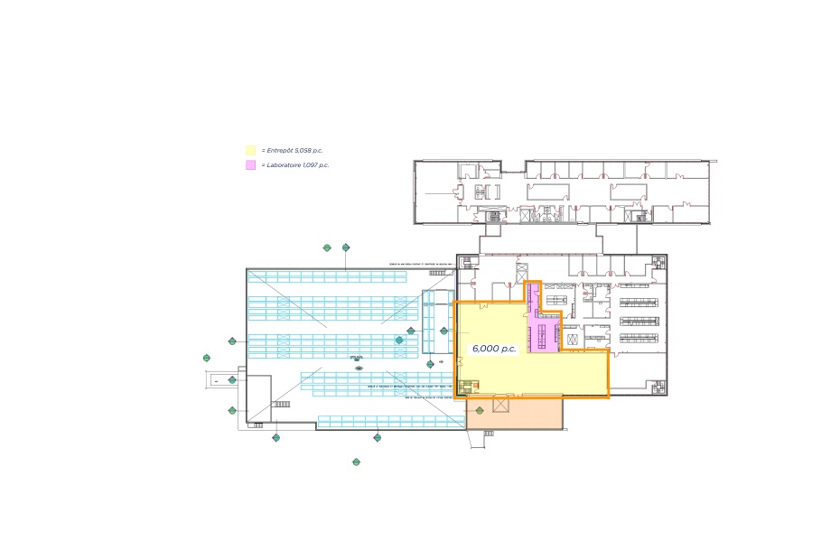
D’une superficie d’environ 17 000 p.c., ce local situé en demi-sous-sol est parfaitement adapté pour une entreprise nécessitant des espaces vastes et fonctionnels pour de la production, du laboratoire, de l’assemblage ou de l’entreposage technique.
Le local bénéficie de deux quais de chargement à environ 3 pieds du sol — idéal pour un accès rapide et efficace aux camions et à la logistique quotidienne. L’espace de production/labo est déjà segmenté de façon structurée, permettant une utilisation optimale dès la prise de possession.
Grâce à sa localisation dans le Parc-Technologique, ce local offre un cadre professionnel recherché et un environnement conçu pour les entreprises scientifiques, technologiques et manufacturières.
https://carte.ville.quebec.qc.ca/GrillesZonage/HandlerZonage.ashx?22118Ip
Ce n’est pas le local idéal ?
Contactez nous, plusieurs locaux ne sont pas affichés
Chez Location BCI, nous sommes spécialisés dans la location de locaux commerciaux adaptés aux besoins de votre entreprise. Que vous soyez à la recherche d’un local à louer, d’un bureau à louer, ou d’un local industriel à louer, notre équipe professionnelle est là pour vous accompagner et cela rapidement.
Si le local que vous consultez ne correspond pas parfaitement à vos attentes, pas de souci! Nous mettons tout en œuvre pour trouver le meilleur espace pour votre entreprise grâce à notre expertise, notre réseau et notre rapidité d’action.
Notre mission est simple : vous offrir un service personnalisé, efficace et axé sur vos besoins spécifiques, afin de garantir une expérience de location fluide et sans tracas. Avec Location BCI, vous avez la certitude de collaborer avec une agence professionnelle qui comprend l’importance d’un local parfaitement adapté à votre réussite.
Contactez-nous dès aujourd’hui pour explorer nos options de locaux commerciaux à louer à Québec et laissez-nous vous guider vers l’espace idéal pour votre entreprise.
